기술자료 파워록 선정 및 절차
선정 순서나 주의사항 등을 보시고 싶은 분은 아래로 진행하십시오.
제품 시리즈의 좁히기나 가선정을 희망하시는 분은
여기를 클릭하십시오.
사용 조건이 정해져 상세한 선정을 희망하시는 분은
여기를 클릭하십시오.
EF 시리즈 선정
1. 최대 발생 토크와 최대 발생 스러스트 하중 확인
발생하는 전달 용량에 서비스 요소 예상하여 최대 발생 토크와 최대 발생 스러스트 하중을 구합니다.
※서보 모터·스테핑 모터의 체결의 경우는, 각각의 최대 토크(피크 토크)를 최대 발생 토크(Tmax)로 해 주십시오
| SI 단위 |
|---|
|
Tmax = 9550 × H n ・f Tmax = 최대 발생 토크(N·m)
|
| 중력 단위 |
|---|
|
Tmax = 974 × H n ・f Tmax = 최대 발생 토크(kgf·m)
|
Pmax = Pax・f
- Pmax: 최대 발생 스러스트 하중 kN{kgf}
- Pax: 스러스트 하중 kN{kgf}
- f: 서비스 요소
f: 서비스 요소
| 부하 상태 | 서비스 요소 | |
|---|---|---|
| 충격이 없는 원활한 부하 | 관성 소 | 1.5~2.5 |
| 가벼운 충격이 있는 하중 | 관성 중 | 2.0~4.0 |
| 큰 충격이 있는 하중 | 관성대 | 3.0~5.0 |
토크만 걸리는 경우
이상으로부터 구한 Tmax와 카탈로그 전달 토크 M t를 비교합니다.
M t ≧ Tmax → 사용할 수 있습니다.
M t < Tmax → 형번 업을 검토해 주십시오.
토크와 스러스트 하중이 동시에 가해지는 경우
합성 부하 M R을 계산하고 전달 토크 M t와 비교합니다.
MR = Tmax2 + (Pmax × d 2 )2
- Tmax : 최대 발생 토크 N·m{kgf·m}
- Pmax : 최대 발생 스러스트 하중 N{kgf}
- d:축경 m
이상으로부터 구한 M R과 카탈로그 전달 토크 M t를 비교합니다.
M t ≧ M R → 사용할 수 있습니다.
M t < M R → 형번 업을 검토해 주십시오.
* 본 시리즈는 여러 개로 사용할 수 없습니다.
2. 축과 보스의 검토
(1) 재료 강도 검토
축과 보스에는 체결시 큰 면압이 작용합니다. 축 및 보스는 다음 식을 만족하는 강도가 있는 재질의 것을 사용해 주십시오.
σ0.2S≧ 1.2 × P σ0.2B≧ 1.2 × P'
- P : 축측면압 MPa{kgf/mm 2}
- P':보스 측면압 MPa{kgf/mm 2}
- σ 0.2S: 사용축 재료의 항복점 응력 MPa{kgf/mm 2}
- σ 0.2B: 사용 보스 재료의 항복점 응력 MPa{kgf/mm 2}
철강재료의 강도 일람표에는, 대표적인 철강재료의 항복점의 값을 나타내고 있으므로, 참조해 주십시오.
(2) 보스 외경의 검토
EF 시리즈의 주요 제원 페이지를 참조하십시오.
일람표에 기재되지 않은 재질에 대해서는, 다음 식에 따라 필요 보스 외경을 산출해 주십시오.
보스 외경 D N ≧ D σ0.2B + K 3 · P' σ0.2B- K 3 · P' + d G
- D N: 보스 외경 mm
- D : 보스 내경 mm
- P':보스 측면압 MPa{kgf/mm 2}
- σ 0.2B: 사용 보스 재료의 항복점 응력 MPa{kgf/mm 2}
- d G: 체결 볼트 호칭 직경
- K 3: 보스 형상 계수 (각 제품의 주요 제원 페이지를 참조하십시오.)
(3) 중공축 내경의 검토
중공축 내경은 다음 식으로 산출해 주십시오.
중공축 내경 d B ≤ d × σ0.2S- 2・P・K 3 σ0.2S
- d B: 중공축 내경 mm
- d: 축경 mm
- P:축 측면압 MPa{kgf/mm 2}
- σ0.2S: 사용축 재료의 항복점 응력 MPa{kgf/mm 2}
- K 3: 보스 형상 계수 (각 제품의 주요 제원 페이지를 참조하십시오.)
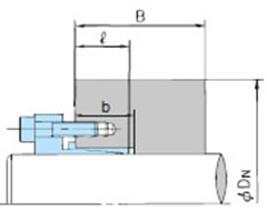
3. 레이디얼 하중
벨트 구동 등과 같이, 레이디얼 하중이 파워록에 작용하는 경우, 다음 식으로 레이디얼 하중에 의해 발생하는 축측, 보스측의 면압 Prad, P'rad를 산출하고, 축측, 보스 측면압과 카탈로그 면압을 비교하여 표 3의 허용치 이내인지 확인하십시오.
Prad = 1.3 × Pr d × ℓ
P'rad = 1.3 × Pr D × ℓ
- Pr: 레이디얼 하중 N{kgf}
- ℓ: 보스와 아우터링의 접촉면 폭 mm
- d: 축경 mm
- D: 보스 내경 mm
- P:축 측면압 MPa{kgf/mm 2}
- P':보스 측면압 MPa{kgf/mm 2}
이러한 레이디얼 하중이 작용할 때의 필요 보스 외경 Dn이나 중공축 내경 dB를 구하는 경우는 각각 P, P'에 Prad, P'rad을 가산하여 계산해 주십시오.
| 시리즈 | Prad(P'rad)/P(P') |
|---|---|
| EF | 20% 이하 |
